Spoelbak Elon XL 8 S
- kleur vulkaangrijs
- materiaal SILGRANIT® PuraDur®
- geschikt voor opbouwmontage
- zijdelingse kraanrichel – praktisch in geval van montage voor venster
- 2 voorgefreesde gaten voor ponsen
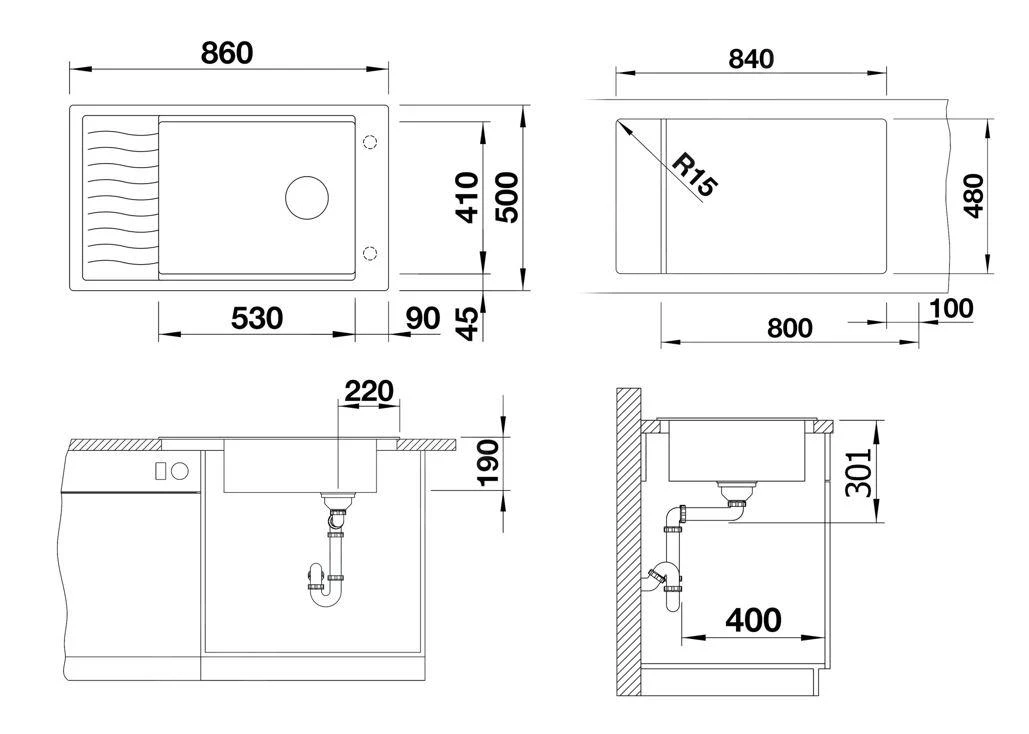
- minimale kastbreedte 800 mm
- totale afmetingen 860 x 500 mm
- afmetingen spoelbak 530 x 410 mm
- diepte spoelbak 190 mm
- met afdruipgedeelte – links of rechts draaibaar
- uitbreidbaar afdruipgedeelte dankzij het verschuifbare roestvrijstalen afdruiprooster
- zonder excentrische bediening – bediening op afstand van de waste
- diameter afvoer 3 1/2″
De verpakking bevat:
- roestvrijstalen afdruiprooster
- 3 1/2″ InFino® korfplug – elegant ingebouwd en eenvoudig in onderhoud, handmatige bediening
- afvoergarnituur met ruimtebesparende buis

















Beoordelingen
Er zijn nog geen beoordelingen.